Доставка по всей России!
Резервуар горизонтальный РГС-30 м³
Технологические процессы промышленных предприятий включают использование различных жидкостей. На производственных площадках приходится организовывать места хранения запаса рабочей жидкости и отработанных веществ. Требования к хранению для различных по химическому составу жидких субстанций отличаются, в зависимости от вредных и опасных факторов. Завод Резервуаров и Негабаритных Металлоконструкций произведет резервуары горизонтальные РГС, емкостью 30 м³, с учетом требований безопасности, по оптимально невысоким ценам.
Производство
Завод РиНМ является производителем емкостного оборудования. Продукция имеет преимущества, по причине полного цикла ее изготовления в цехах одного завода. Для производства РГС-30 м³ имеется развитый производственный комплекс, который включает:
На всех этапах: от разработки технической документации, последующего производства, испытаний и монтажа, трудится квалифицированный, прошедший обучение и проверку знаний персонал. Каждый работник понимает и несет ответственность за качество.
Классификация РГС-30 м³
В зависимости от климатического исполнения, эксплуатационных условий и рабочей среды наполнения резервуары подразделяются:
Горизонтальные резервуары, вместимостью 30 м³ производятся по техническим требованиям ГОСТ 17032-2010, ГОСТ Р 34347-2017, с учетом индивидуальных требований заказчика, под условия эксплуатации.
Описание конструкции и вспомогательного оснащения
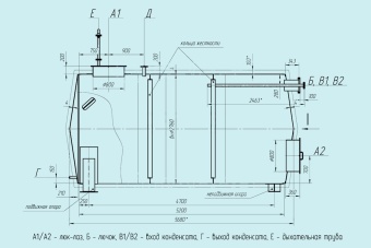
РГС-30 м³ – цельносварной цилиндр постоянного сечения, с коническими торцами.
Таблица 1. Типовые размеры
|
Наименование детали конструкции |
Параметр |
Размер, мм |
|
Корпус |
Расстояние между центрами торцевых частей |
5680 |
|
Корпус |
Внутренний диаметр |
2760 |
|
Днище |
Длина |
5200 |
|
Опоры подвижные и неподвижная |
Расстояние между центрами опор, расположенных в противоположных концах днища |
4700 |
|
Люк-лаз А1/А2 |
Количество – 2. В верхней и торцевой части. Диаметр одинаковый |
800 |
Резервуар укомплектован клапанами входа и выхода конденсата, дыхательной трубкой, вмонтированной в верхний люк-лаз, уровнемером, задвижками слива, технологическим лючком. Конструкция укреплена кольцами жесткости. Возможна разработка проекта по требованию заказчика с изменением длины и диаметра корпуса, с сохранением объема 30 м³.
Особенности РГС-30 м³ наземной и подземной установки
У потребителей востребованы горизонтальные резервуары объемом 30 кубических метров, как для наземного, так и для подземного размещения. При производстве этот фактор учитывается с целью обеспечения эксплуатационных характеристик.
Таблица 2. Наземные и подземные резервуары
|
Характеристики |
Наземная установка |
Установка с заглублением в грунт |
|
Обозначение |
РГСн-30 м³ |
РГСп-30 м³ |
|
Толщина стенок, мм |
4-6 |
6-10 |
|
Материал |
Сталь Ст3сп, 10Г2, 16ГС, 09Г2С |
Сталь 09Г2С, 10Г2С1 и нержавеющие марки 12Х18Н10Т, 08Х18Н10 |
|
Толщина цинкового покрытия, мкм |
40-60 |
60-80 |
|
Внешнее покрытие |
Грунт, эмаль |
Битумная мастика |
|
Количество стенок |
1 или 2, в зависимости от рабочей среды |
1 или 2, в зависимости от рабочей среды, и свойства грунта |
|
Плотность рабочей среды, кг/м3 |
1000 |
1000 |
|
Рабочее давление, МПа |
не более 0,7 |
не более 0,4 |
|
Дополнительное оборудование |
Наземная лестница |
Хомуты |
|
Особые условия |
Стандартные |
Расположение лаз-люка и других отверстий с учетом глубины погружения |
РГС имеют исполнение, позволяющее эксплуатацию в диапазоне температур от – 40ºC до + 90ºC. Специалисты Завода Резервуаров и Негабаритных Металлоконструкций дадут технические рекомендации при оформлении заказа. Окончательное решение по материалам, толщине стенок и покрытию остается за заказчиком.
Применение
Резервуары горизонтальные, емкостью 30 м³, имеют повышенный спрос и активно применяются
Резервуары на 30 метров куб. оптимально подходят для установки на небольших заправках, в нефтепереработке и для использования в качестве резервного противопожарного запаса воды.
Плюсы покупки резервуаров от Завода РиНМ
Компания поставляет сертифицированные емкости для герметичного хранения жидких веществ. Надежность производителя подтверждена качеством продаваемых горизонтальных резервуаров РГС-30 м³. У нас:
Лучший способ купить РГС-30 м³ – через заполнение опросного листа. Своевременно выполняем договорные обязательства.

Цены от производителя
Гарантия качества
Комплектация объектов под ключ
Производим монтаж/демонтаж
Оперативная доставка в любой регион
Быстрые сроки поставки,
четкое соблюдение сроков
Персональный подход
Гарантийное обслуживание
Разработка КМД от 2-х
рабочих дней
Составление КП от 15 минут
Подготовим коммерческое предложение
с учетом ваших индивидуальных технических требований
|
ОБОЗНАЧЕНИЕ |
НАЗНАЧЕНИЕ |
|---|---|
|
А1, А2 |
люк-лаз |
|
Б |
лючок |
|
В1, В2 |
вход конденсата |
|
Г |
выход конденсата |
|
Д |
уровнемер |
|
Е |
дыхательная труба |
|
Ж |
слив продукта |
Чтобы избавить Вас от необходимости поиска логистической компании, мы готовы взять на себя работу по осуществлению доставки оборудования на Ваш объект.
Преимущества осуществления доставки при помощи нашей компании:
Свяжитесь с нашим менеджером по телефону или через форму сайта и мы подготовим для Вас расчет.