Резервуары и металлоконструкции
от завода-производителя

Доставка по всей России!

slide-s02

Резервуар горизонтальный РГС-70 м3

РГС-70 – это резервуары, которые используются при организации кратковременного и длительного хранения нефти и нефтепродуктов, различных видов технических жидкостей, перемещаемых по технологическим трубопроводам, иных агрессивных и неагрессивных веществ, при условии что их плотность не превышает 1300кг/м3.

Специализированный Завод Резервуаров и Негабаритных Металлоконструкций реализует резервуары горизонтальные РГС-70 м3 напрямую от предприятий изготовителей по заводским ценам.

РГС-70 м3: основные нормативно-технические документы

Производство резервуаров РГС строго регламентировано. Основной документ, определяющий все существенные требования к процессу изготовления, материалам и технологическим процессам – ГОСТ 17032-2010.

В соответствии с ТУ 3615-001-30805706-2012 изготовление резервуаров РГС-70 м3 может осуществляться 3 основными методами:

№ п/п Наименование Особенности
1 Полистовая сборка Формирование стенок и днища осуществляется из листовой стали максимально возможных размеров (до2,5х10м). Листовые конструкции упаковывают и транспортируют в ложементах – специально изготовленных контейнерах.
2 Рулонирование Для изготовления стенок и крыши резервуара используют специальные листовые конструкции в виде рулонируемых полотен.
3 Комбинированный способ Позволяет совмещать и полистовой метод и рулонирование.

В зависимости от способа изготовления и последующего применения Резервуары изготавливаются наземного, подземного типа, а также могут быть двухкамерными.

Независимо от типа, конструктивных особенностей изделий, все основные параметры должны соответствовать техническим условиям и требованиям, определенным в отраслевом стандарте номер 17032.

Конструктивные особенности резервуара РГС-70

Модель РГС-70 – это одностенные цилиндрические емкости горизонтального типа расположения на специальных опорах.

В зависимости от давления в системе и эксплуатационных особенностей емкости могут быть:

Марка Тип днища Форма Параметры
РГС-70 Конусообразное отбортованные, не отбортованные Внутреннее давление (Р) не более 0,07МПа
Плоское Р до 0,04МПа
Многокамерные горизонтальные Для хранения 2 сред и более

С учетом технического задания на изготовление в конструкции резервуаров могут быть использованы кольца , повышающие жесктость, привариваемые изнутри конструкции.

Технические характеристики РГС-70

Основные параметры приведены ниже:

№ п/п Параметр Ед. изм. Значение
1 вместимость м3 70
2 продукты для хранения  -

- нефти и нефтепродукты;

- вода, техническая или питьевая;

- агрессивные среды химического происхождения;

- слабо и сильноагрессивные органические вещества

3 плотность кг/м3 до 1300
4 температура хранимого продукта 0С 0 … +90
5 класс опасности ГОСТ12.1.007 I II III IV
6 предельно допустимое рабочее давление МПа до 0,07
7 климатическое исполнение ГОСТ 15150-69 Т1, У1, УХЛ1
8   температура окружающего воздуха в процессе производства монтажных работ 0С -60 … +50
9 Уровень сейсмичности района По 12-бальной шкале 6 баллов
10 Материалы, используемые при изготовлении корпуса и вспомогательного оборудования Сталь марок Ст3 09Г2С

- нержавеющая

- легированная

- углеродистая

Расчетный эксплуатационной ресурс лет Не менее 12  

Ориентировочные габаритные размеры резервуаров (точные параметры определяются индивидуально для каждой емкости, в соответствии с ТЗ на изготовление):

Параметр Ед. изм Показатель
Диаметр корпуса м 3,06
Длина м 10,2
Расстояние между опорами м 4,56
Высота м 5
Кол-во опор шт 2
Масса т 7,96

Основные конструктивные элементы РГС-70 м3:

  • корпус;
  • опоры;
  • люк (с функцией лаза);
  • внутренняя металлическая лестница;
  • сливные и наливные патрубки;
  • крепления для строп.

Антикоррозийная защита:

Обязательно Дополнительно (по согласованию с заказчиком)
Снаружи по всей площади поверхности наносится грунт. Поверх грунта - эмаль с высокими антикоррозийными свойствами гидроизоляция для дополнительной защиты от коррозии
утепление при помощи высококачественного теплоизоляционного слоя
обогрев емкости
покрытие изнутри эпоксидными и цинконаполненными материалами.

Резервуар горизотальный РГС-70 м3: особенности изготовления

Завод РиНМ имеет все необходимые сертификаты и разрешения для производства резервуаров РГС объемом 70м3. Изготовление высококачественной продукции осуществляется методом рулонирования. В качестве исходного сырья используются вальцованные заготовки, которые свариваются между собой в верхней и нижней частях.

Для обеспечения требуемых параметров и характеристик, на основании произведенных расчетов используются следующие типы стального проката:

  •  углеродистая;
  • низколегированная;
  • полуспокойная;
  • кипящая.

При проведении расчетов требуемой конструкции, определения марки стали, а также подбора технологического оборудования, должны учитываться следующие основные параметры:

  • предельно допустимое давление среды внутри емкости;
  • уровень внешних нагрузок на стенки резервуара (сейсмическое воздействие, ветровая и снеговая нагрузка, плотность грунта);
  • химические параметры жидкой среды, хранящейся в емкости;
  • температурный эксплуатационный режим и пр.

Гарантии резервуара РГС-70 м³ от производителя

Процесс производства резервуаров в компании РиНМ полностью соответствует требованиям отраслевых стандартов и иных нормативно-технических документов. Все изделия, по окончании процесса изготовления, проходят контроль качества, испытания на соответствие. Продукция, поставляемая клиентам, сертифицирована, а цены, которые предлагает Завод, самые выгодные и доступные.

Доставка осуществляется по всей территории страны. Отгрузка продукции – в день поступления оплаты.

Преимущества

  • Цены от производителя

  • Гарантия качества

  • Комплектация объектов под ключ

  • Производим монтаж/демонтаж

  • Оперативная доставка в любой регион

  • Быстрые сроки поставки,
    четкое соблюдение сроков

  • Персональный подход

  • Гарантийное обслуживание

  • Разработка КМД от 2-х
    рабочих дней

  • Составление КП от 15 минут

Подготовим коммерческое предложение
с учетом ваших индивидуальных технических требований

Скачать опросный лист

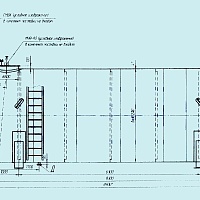
Технические характеристики

ОБОЗНАЧЕНИЕ НАЗНАЧЕНИЕ
А люк-лаз
Б1, Б2 вход/выход продукта
В для замерного люка
Г для дыхательной трубы
Г1 для СМДК-100
Д дренаж
Е1, Е2 для МУВ-80
И для сигнализатора уровня

 

Чертеж

Чертеж Резервуар горизонтальный РГС-70 м3

Доставка

Чтобы избавить Вас от необходимости поиска логистической компании, мы готовы взять на себя работу по осуществлению доставки оборудования на Ваш объект.

Преимущества осуществления доставки при помощи нашей компании:

  • Работа только с проверенными временем подрядчиками
  • Четкое соблюдение сроков
  • Разумные цены
  • При необходимости, груз можно застраховать
  • Стоимость услуги рассчитывается индивидуально, в зависимости от региона доставки и объема груза.

Свяжитесь с нашим менеджером по телефону или через форму сайта и мы подготовим для Вас расчет.

Скачать опросный лист